最近更新于 2025-11-15 15:03
参考资料
- 《GB/T 5371-2004 极限与配合 过盈配合的计算和选用》
符号含义


引用公式



计算
公式推导
由上表可以推导出下面公式
p_{f\ max}=\frac{\delta_{e\ max}}{d_f(\frac{C_i}{E_i}+\frac{C_a}{E_a})}
p_{f\ max}就是作用在接合面上的最大压强,径向的压强
上表中
F_t=p_{f\ max}\cdot\pi\cdot d_f\cdot l_f\cdot\mu
就是计算压入力,这是轴向的力,实际就是计算轴向的摩擦力。
\pi\cdot d_f\cdot l_f就是结合面面积(圆柱面),与接合面压强相乘就是作用于接合面上的力(径向力),再乘以摩擦系数就是接合面上的摩擦力。
结合上面两个公式就得到
F_t=\frac{\delta_{e\ max}\cdot\pi\cdot l_f\cdot\mu}{\frac{C_i}{E_i}+\frac{C_a}{E_a}}
其中
C_a=\frac{1+q_a^2}{1-q_a^2}+\nu_a,
C_i=\frac{1+q_i^2}{1-q_i^2}-\nu_i \\
q_a=\frac{d_f}{d_a},q_i=\frac{d_i}{d_f}
计算示例

注:长度单位全部使用 mm 计算
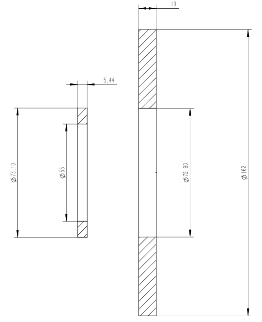
轴尺寸\Phi73_{+0.030}^{+0.100},孔尺寸\Phi73_{-0.010}^{-0.035},上图轴孔是取的最大过盈的情况,最大有效过盈量\delta_{e\ max}=73.1-72.9=0.2
结合直径d_f=73
包容件外径d_a=162
被包容件内径d_i=55
结合长度l_f=5.44
Excel 表格:https://pan.baidu.com/s/1NiF-YqOHlZoYoQBdJHZfmg?pwd=5muh
如果还要算这个过盈联结能支持的扭矩的话,在压入力上乘以\frac{d_f}{2}就行,压入的时候结合面的摩檫力就是压入力,旋转的时候这个摩擦力就是在这个结合面上转动能提供的力大小,所以乘以这个结合面所在圆的半径就是扭矩了。
过盈配合压装力理论值计算
